Чтобы увидеть цены, необходимо пройти регистрацию компании. Авторизуйтесь или создайте аккаунт
Компьютеры и комплектующиеНастольные компьютерыСетевое и серверное оборудование, СХДПечатная техникаКартриджи и комплектующиеСистемы автономного электроснабженияЭлементы питанияДемонстрационное оборудование и аксессуарыКоммерческая визуализацияЛетательные аппараты и комплектующиеФото и Видео техникаБытовая техникаСадовая техникаОборудование для торговли и автоматизацииПланшетыМобильные телефоны и аксессуарыСмарт часы и браслетыНаушники и микрофоныАкустические системыРюкзаки, чемоданы, сумкиТелевизоры и аксессуарыНосители информацииКабельные системыЭлектротехническое оборудование и автоматизацияКабелиОсвещениеБытовая химияИнструментыЭлектротранспортИгрушки, игровые устройства, аксессуарыБассейны, батуты и товары для отдыха на пляжеОтдых и туризмМультимедиа устройстваСистемы безопасностиАксессуары для автомобилейКанцелярские товарыДом и офисКрасота и здоровьеПодкаталог
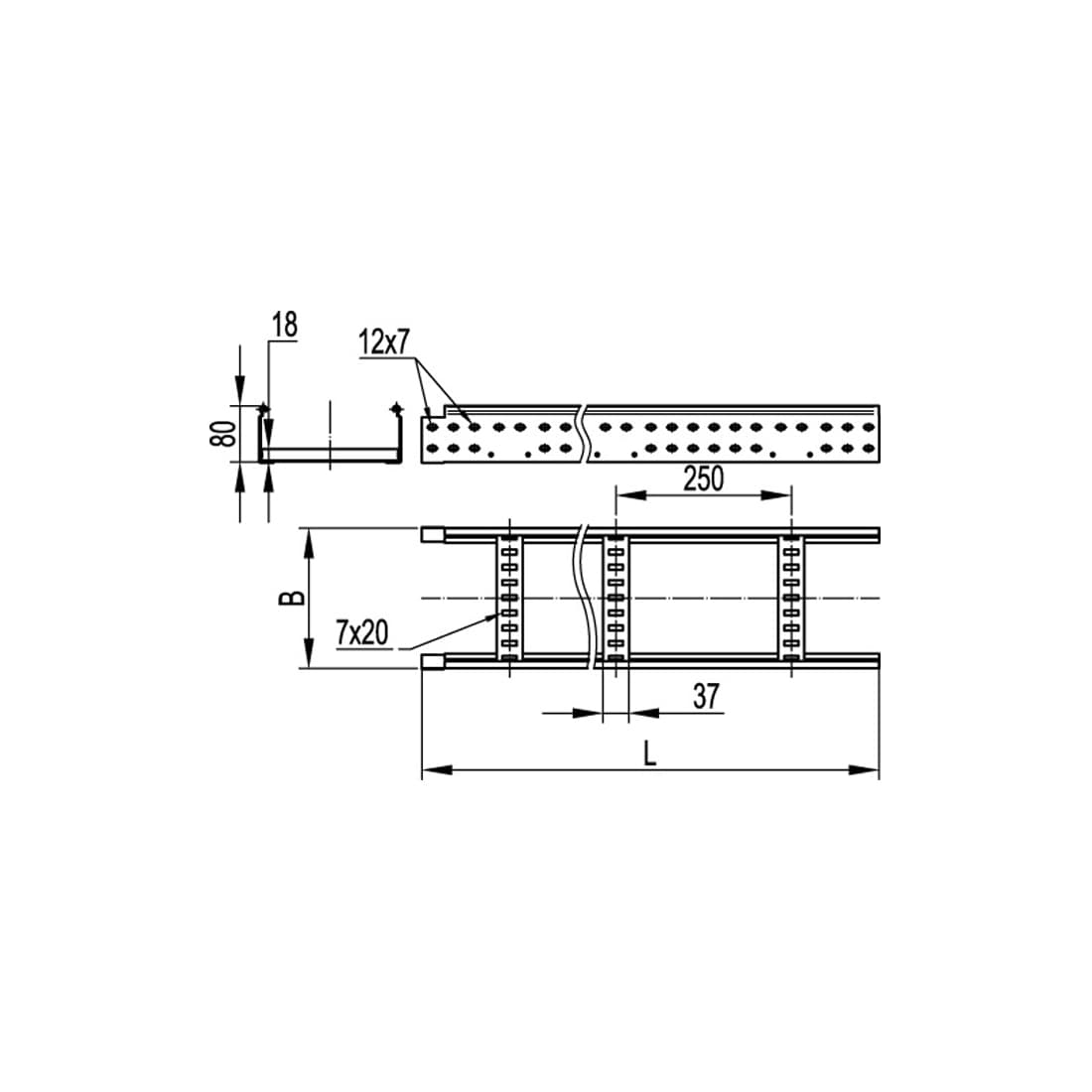
Лестничный лоток 100х400, DKC, LL1040, L3000
Лестничный лоток 100х400, DKC, LL1040, L3000
Лестничный лоток 100х400, DKC, LL1040, L3000
Полное название товара
Лестничный лоток 100х400, DKC, LL1040, L3000
Артикул
LL1040
Номер товара
59318
Лестничный лоток DKC LL1040 размером 100х400х3000 мм предназначен для открытой прокладки кабельных трасс различного назначения. Его конструкция обеспечивает высокую несущую способность, что делает его идеальным для использования на промышленных объектах и в других местах, где требуется надежная поддержка для кабелей крупного сечения. Изготовленный из стали с горячим цинкованием по методу Сендзимира, лоток обладает отличной устойчивостью к коррозии и рассчитан на длительный срок службы как в помещении, так и на улице. Боковые стенки лотка перфорированы, что способствует вентиляции и облегчает монтаж кабеля. Толщина лонжерона составляет 1,5 мм, обеспечивая прочность и долговечность изделия.
ДКС
Цена действительна только для интернет-магазина и может отличаться от цен в розничных магазинах
Описание товара
Лестничный лоток DKC LL1040 размером 100х400х3000 мм предназначен для открытой прокладки кабельных трасс различного назначения. Его конструкция обеспечивает высокую несущую способность, что делает его идеальным для использования на промышленных объектах и в других местах, где требуется надежная поддержка для кабелей крупного сечения. Изготовленный из стали с горячим цинкованием по методу Сендзимира, лоток обладает отличной устойчивостью к коррозии и рассчитан на длительный срок службы как в помещении, так и на улице. Боковые стенки лотка перфорированы, что способствует вентиляции и облегчает монтаж кабеля. Толщина лонжерона составляет 1,5 мм, обеспечивая прочность и долговечность изделия.
Отзывы
Увы, пока нет отзывов
Будьте первым, кто поделится своим мнением!
Вам также может понравиться