Чтобы увидеть цены, необходимо пройти регистрацию компании. Авторизуйтесь или создайте аккаунт
Компьютеры и комплектующиеНастольные компьютерыСетевое и серверное оборудование, СХДПечатная техникаКартриджи и комплектующиеСистемы автономного электроснабженияЭлементы питанияДемонстрационное оборудование и аксессуарыКоммерческая визуализацияЛетательные аппараты и комплектующиеФото и Видео техникаБытовая техникаСадовая техникаОборудование для торговли и автоматизацииПланшетыМобильные телефоны и аксессуарыСмарт часы и браслетыНаушники и микрофоныАкустические системыРюкзаки, чемоданы, сумкиТелевизоры и аксессуарыНосители информацииКабельные системыЭлектротехническое оборудование и автоматизацияКабелиОсвещениеБытовая химияИнструментыЭлектротранспортИгрушки, игровые устройства, аксессуарыБассейны, батуты и товары для отдыха на пляжеОтдых и туризмМультимедиа устройстваСистемы безопасностиАксессуары для автомобилейКанцелярские товарыДом и офисКрасота и здоровьеПодкаталог
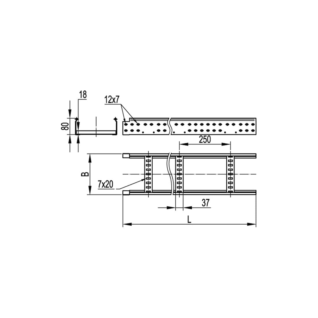
Лестничный лоток 100х500, DKC, LL1050, L3000
Лестничный лоток 100х500, DKC, LL1050, L3000
Лестничный лоток 100х500, DKC, LL1050, L3000
Полное название товара
Лестничный лоток 100х500, DKC, LL1050, L3000
Артикул
LL1050
Номер товара
59260
Лестничный лоток DKC LL1050 — это надежное решение для открытой прокладки кабельных трасс на различных объектах, включая коммерческие, промышленные и гражданские сооружения. Изготовленный из стали, оцинкованной по методу Сендзимира, лоток обладает высокой несущей способностью и устойчивостью к коррозии. Его размеры составляют 100 мм в высоту, 500 мм в ширину и 3000 мм в длину, а толщина лонжеронов — 1.5 мм. Этот лоток из серии L5 Combitech идеально подходит для использования на значительных пролетах, а также в условиях повышенных нагрузок или больших расстояний между опорами, обеспечивая безопасную и эффективную организацию кабельных систем.
ДКС
Цена действительна только для интернет-магазина и может отличаться от цен в розничных магазинах
Описание товара
Лестничный лоток DKC LL1050 — это надежное решение для открытой прокладки кабельных трасс на различных объектах, включая коммерческие, промышленные и гражданские сооружения. Изготовленный из стали, оцинкованной по методу Сендзимира, лоток обладает высокой несущей способностью и устойчивостью к коррозии. Его размеры составляют 100 мм в высоту, 500 мм в ширину и 3000 мм в длину, а толщина лонжеронов — 1.5 мм. Этот лоток из серии L5 Combitech идеально подходит для использования на значительных пролетах, а также в условиях повышенных нагрузок или больших расстояний между опорами, обеспечивая безопасную и эффективную организацию кабельных систем.
Отзывы
Увы, пока нет отзывов
Будьте первым, кто поделится своим мнением!
Вам также может понравиться